Апартаменти - планове и разпределения
Тук ще намерите всички налични планове. Някои апартаменти са с идентични разпределения - под всеки план е указано за кои номера важи.
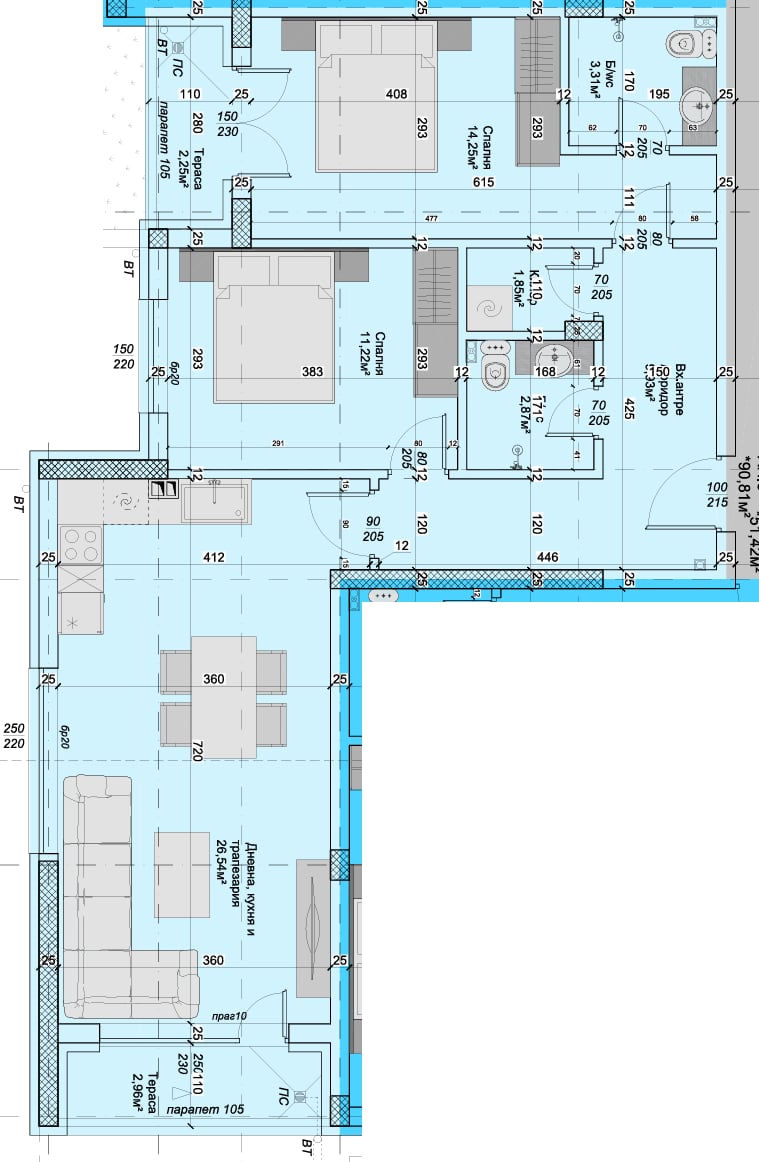
Всички планове
Кликнете върху изображение за увеличаване.

План - апартаменти 1

План - апартаменти 2

План - апартаменти 3

План - апартаменти 4

План - апартаменти 5

План - апартаменти 6, 11, 16

План - апартаменти 7, 12, 17

План - апартаменти 8, 13, 18

План - апартаменти 9, 14, 19

План - апартаменти 10, 15, 20